Appartamento in Vendita in Torino Campidoglio

VIA ROCCIAMELONE 16 - Campidoglio - TORINO (TORINO)

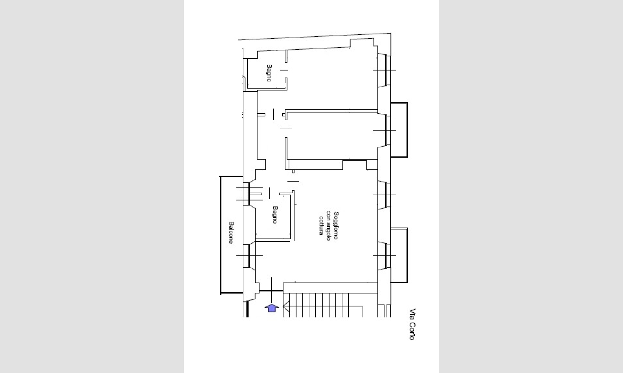
Rif. TRILOCALE IN FASE DI RISTRUTTURAZIONE TOTALE

178000 €
Descrizione Immobile

In zona Campidoglio che ospita il MAU – Museo di Arte Urbana e contemporanea a cielo aperto, nel quartiere che include oltre 200 opere d'arte, come murales, finestre dipinte, serrande colorate e panchine d'autore, visibili passeggiando liberamente per le vie del Borgo Vecchio Campidoglio, in via Rocciamelone, in palazzina primi '900 di soli due piani senza ascensore, Dimensionecasa propone in vendita TRILOCALE IN FASE DI RISTRUTTURAZIONE TOTALE CON CAPITOLATO A SCELTA, composto da living su soggiorno con cucina a vista, due camere da letto e doppi servizi. Doppia esposizione, tre balconi. TERMOAUTONOMO. Locale cantina al piano interrato. POSSIBILITA' DI POSTO AUTO INTERNO CORTILE al prezzo di € 15.000 CONSEGNA PREVISTA GIUGNO 2026. Prezzo € 178.000

Dettagli Immobile
Riferimento Immobile: 
TRILOCALE IN FASE DI RISTRUTTURAZIONE TOTALE
Spese Condominiali: 
€ 70 MENSILI
Anno Costruzione: 
1900
Piano: 

1 su 2 piani

Vani: 
3.00
Locali: 
3
N. Bagni: 
2
Classe Energetica: 
C
Caratteristiche Immobile
Stato Conservazione: 
Ristrutturato
Stato Costruzione: 
Buono
Esposizione: 
2 arie
Dettagli Esposizione: 
esposizione interna
esposizione esterna
Riscaldamento: 
autonomo
Tipo Riscaldamento: 
radiatori
Cucina: 
Abitabile
N. Soggiorni: 
1.00
N. Camere Letto: 
2.00
Balconi: 
Ascensore: 
No
Doppi Vetri: 
Area Comune: 
Area Parcheggio: 
Cantina: 
Stato Serramenti: 
Nuovo
Posti Auto: