Appartamento in Vendita in Torino Campidoglio [1]
VIA ROCCIAMELONE 16 - Campidoglio - TORINO (TORINO)
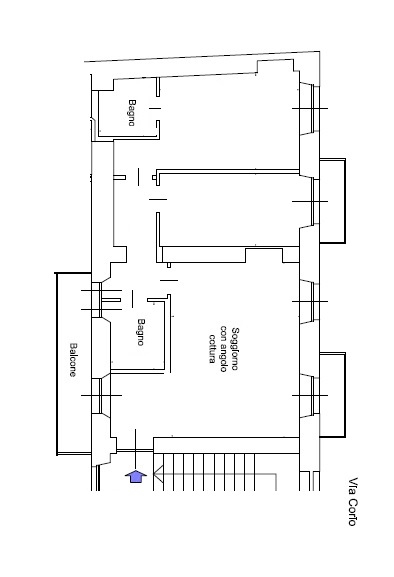
Rif. TRILOCALE IN FASE DI RISTRUTTURAZIONE TOTALE
In zona Campidoglio che ospita il MAU – Museo di Arte Urbana e contemporanea a cielo aperto, nel quartiere che include oltre 200 opere d'arte, come murales, finestre dipinte, serrande colorate e panchine d'autore, visibili passeggiando liberamente per le vie del Borgo Vecchio Campidoglio, in via Rocciamelone, in palazzina primi '900 di soli due piani senza ascensore, Dimensionecasa propone in vendita TRILOCALE IN FASE DI RISTRUTTURAZIONE TOTALE CON CAPITOLATO A SCELTA, composto da living su soggiorno con cucina a vista, due camere da letto e doppi servizi. Doppia esposizione, tre balconi. TERMOAUTONOMO. Locale cantina al piano interrato. POSSIBILITA' DI POSTO AUTO INTERNO CORTILE al prezzo di € 15.000 CONSEGNA PREVISTA GIUGNO 2026. Prezzo € 178.000

