corso tortona 30 - Vanchiglietta - torino (TO)
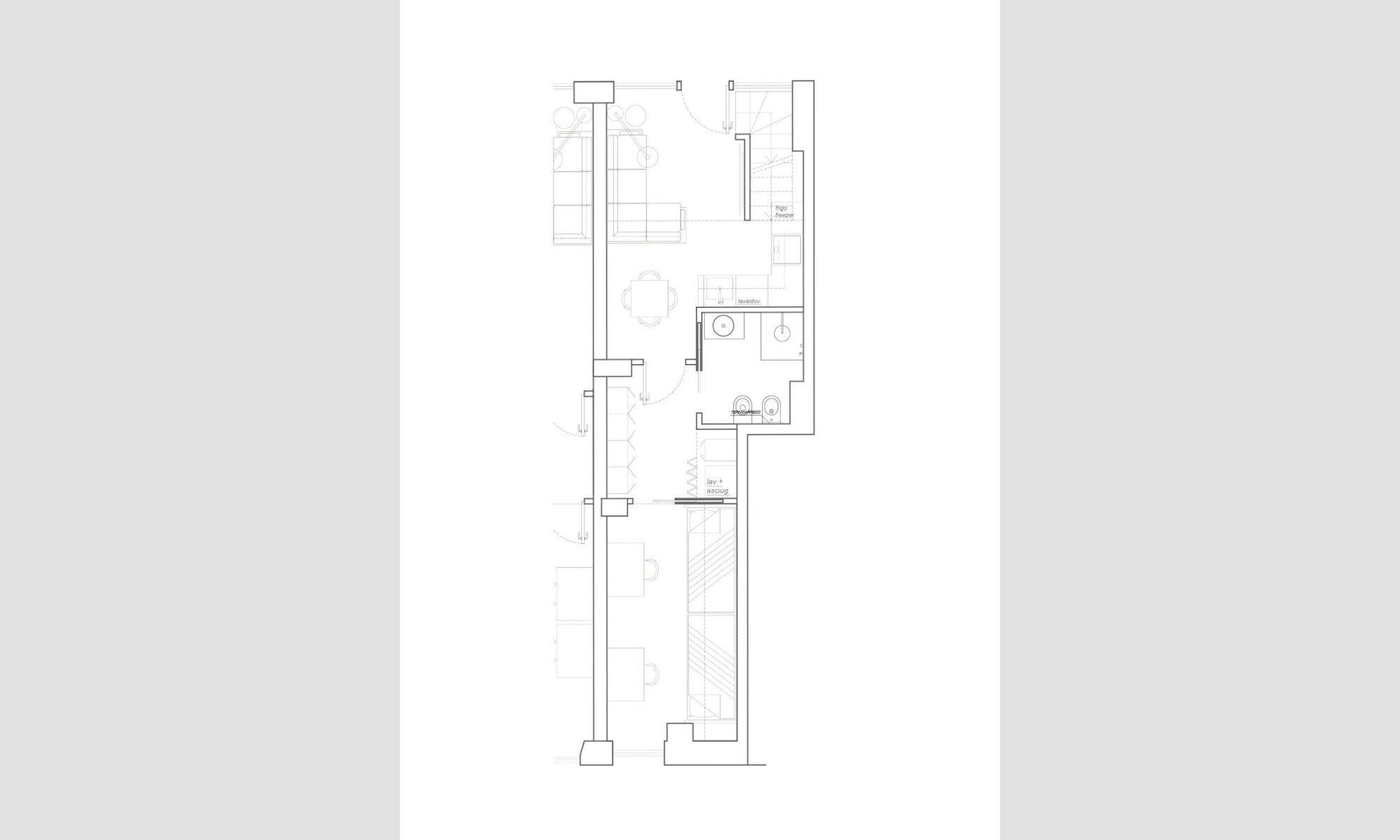
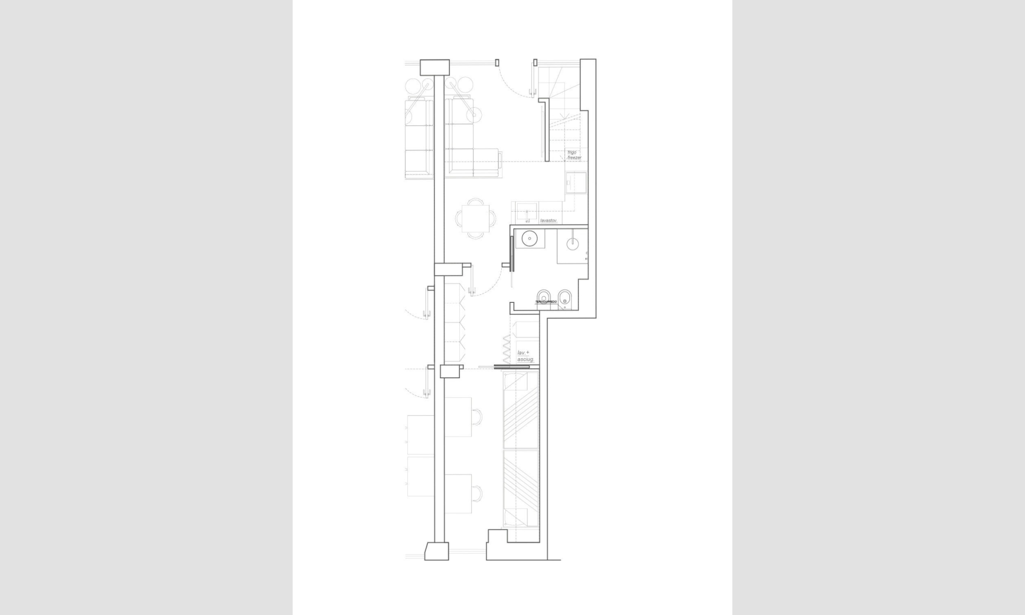
Rif. loft di nuova realizzazione
139000 €
loft di nuova realizzazione
Agenzia Vanchiglia - Vanchiglietta - Corso Belgio, 74/A - Torino
Agenzia San Salvario - Centro - Via Nizza, 66/A - Torino

DIMENSIONECASA è un’azienda che sa proporsi a 360° gradi, che sa cogliere per prima le esigenze e le necessità del cliente, avendo la possibilità di offrire una gamma di prodotti sempre più vasta e sempre più aggiornata e competitiva.
Associato F.I.M.A.A.
