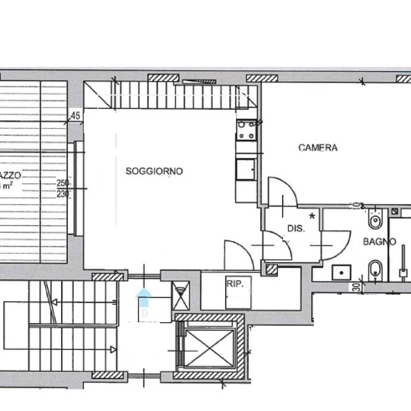
NUOVA COSTRUZIONE "RESIDENZA CHERSO 7"
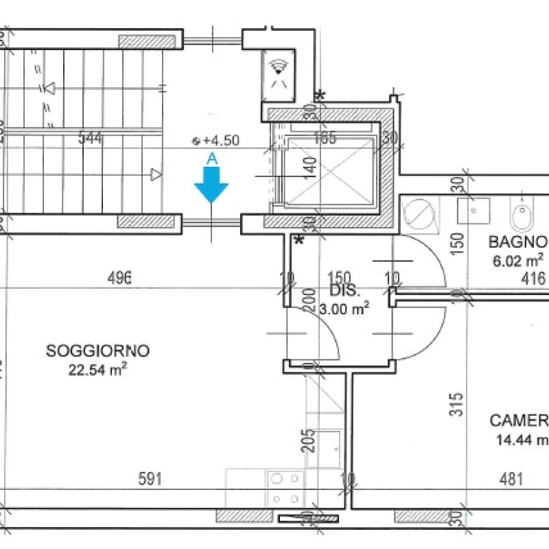
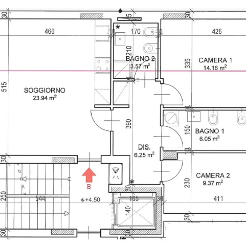
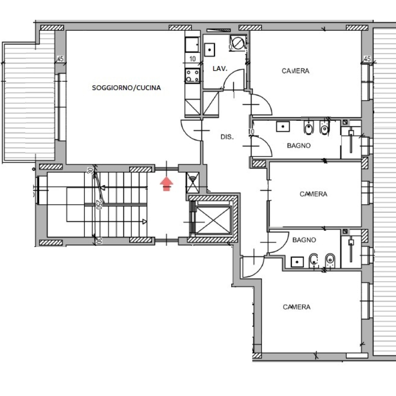
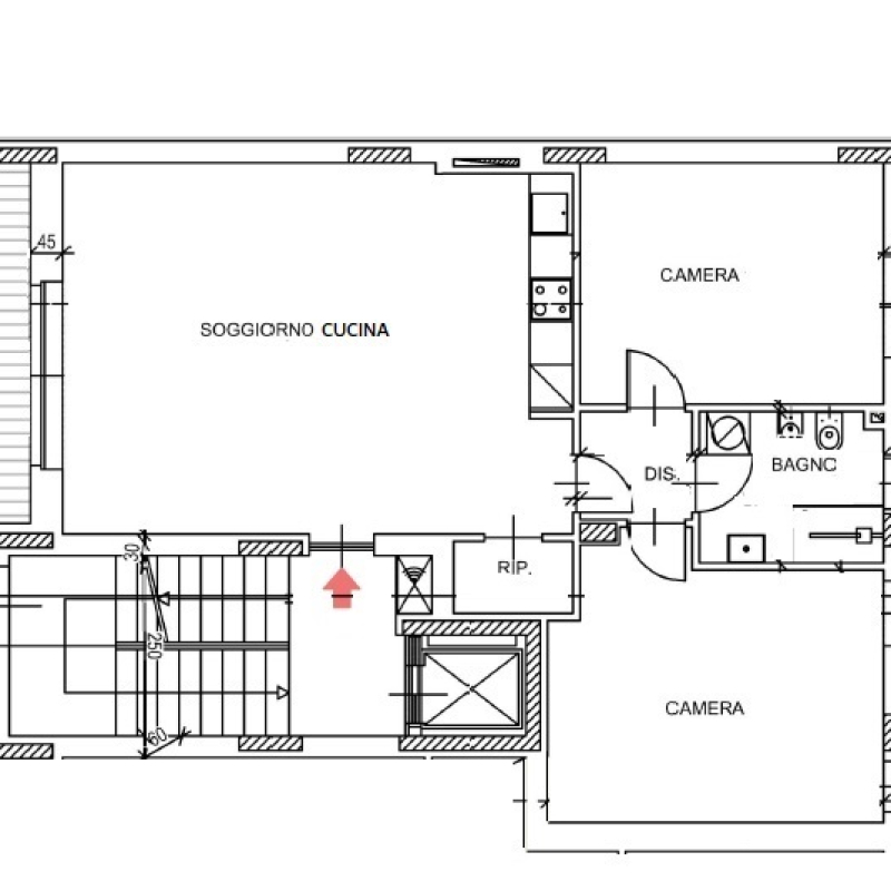
In zona Santa Rita, pressi Piazza Santa Rita in via Cherso 7 sono in corso d'opera i lavori di nuova costruzione di una palazzina ad uso residenziale di cinque piani (6° fuori terra) costituita da n. 8 unità abitative oltre n. 7 box auto singoli o doppi in lunghezza al piano interrato e n. 2 posti auto scoperti posti all' interno cortile, oltre area verde condominiale. Zero barriere architettoniche. Massima efficienza energetica e presenza di fotovoltaico per la produzione di energia delle parti comuni. Classe energetica prevista A4. CONSEGNA PREVISTA DICEMBRE 2026. DETRAZIONI FISCALI A FAVORE DEGLI ACQUIRENTI. Alloggi di varie metrature mono/bilo/trilo e quadri oltre due attici bilivelli.


















011.890.10.96
Facebook




