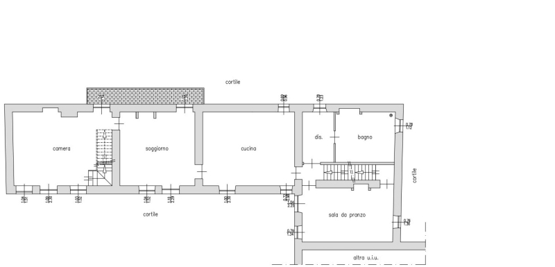
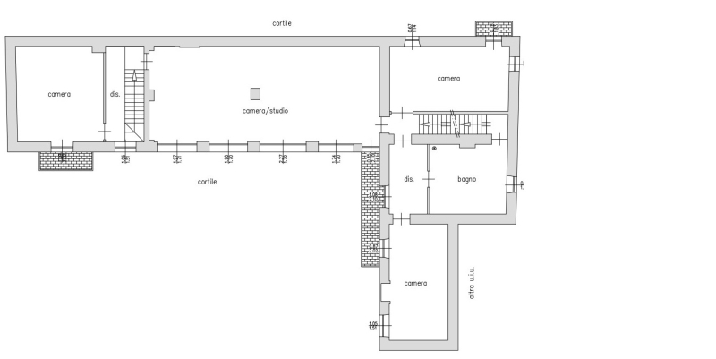
Casa Singola in Vendita in Sciolze Precollina