Appartamento in Vendita in Torino Vanchiglietta [1]
Corso Chieti 19 - Vanchiglietta - torino (Torino)
Rif. ultimo piano! Panoramico
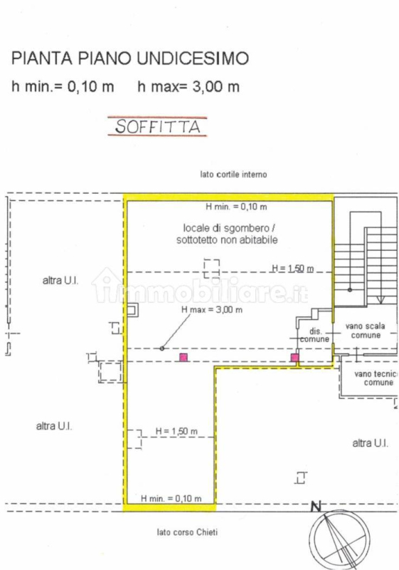
PRESSI PIAZZA TOTI, SU CORSO CHIETI PROPONIAMO IN VENDITA ALLOGGIO AL DECIMO E ULTIMO PIANO COMPOSTO DA INGRESSO LIVING SU SOGGIORNO CON CAMINO E CUCINA A VISTA, UNA CAMERA DA LETTO, STUDIO, RIPOSTIGLIO, SALA DA BAGNO CON DOCCIA/BAGNO TURCO. AL PIANO SUPERIORE CON ACCESSO DA SCALA CONDOMINIALE SOTTOTETTO DI 68 MQ, LAVANDERIA. POSSIBILITA’ DI CREARE COLLEGAMENTO CON SCALA INTERNA E CREARE BALCONCINI ALLA FRANCESE E VELUX. DISPONIBILITA' DI ACQUISTARE BOX AUTO DI 120 MQ AL PREZZO DI € 80.000 OTTIME FINITURE INTERNE: PORTA BLINDATA, INFISSI IN PVC E DOPPIO VETRO, PARQUET IN TUTTA LA CASA, ANTIFURTO E ARIA CONDIZIONATA. POSIZIONE PANORAMICA, BELLA VISTA SU COLLINA. SUPERGA E MOLE ANTONELLIANA. PREZZO € 369.500



