Appartamento in Vendita in Torino Regio Parco [1]
via gottardo 237 - Regio Parco - Torino (TO)
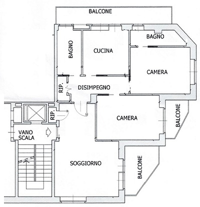
Rif. Quadrilocale Luminoso con Vista Collina
In zona Regio Parco, in via Gottardo una palazzina degli anni '60, situata al sesto piano con ascensore, si trova questo splendido quadrilocale ristrutturato con ottime finiture interne. L'immobile, di 116 m² commerciali, offre un ingresso living su un ampio soggiorno, una cucina abitabile e due camere da letto. Completano la proprietà doppi servizi con finestra, un ripostiglio e una lavanderia. Soffitta al piano sottotetto. La tripla esposizione e i tre balconi garantiscono luminosità e una vista incantevole sulla collina.
Situato nelle immediate vicinanze della nuova fermata della metropolitana "Corelli", questo appartamento è perfetto per chi cerca comodità e accessibilità. Inoltre, un box auto singolo al piano interrato è incluso nel prezzo richiesto di € 238.000.

