Appartamento in Vendita in Settimo Torinese Borgo Po [1]
via villafranca 23 - Borgo Po - settimo Torinese (TO)
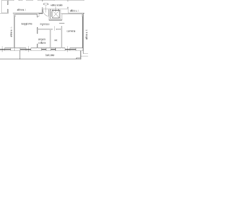
Rif. Settimo Torinese - ampio bilocale piano con ascensore
A Settimo Torinese, zona Borgonuovo, comoda ai servizi e ai principali collegamenti con Torino, in via Villafranca, lo studio Dimensionecasa propone in vendita un ampio bilocale di 61 Mq sito al sesto piano (7° f.t.) composto da ingresso, ampio soggiorno con cucinino, una camera da letto, bagno e cantina al piano interrato. Ogni ambiente ha la propria uscita su un balcone. L'alloggio è libero subito ed è Ideale sia per chi cerca una soluzione abitativa o per chi cerca un immobile da mettere a reddito. Prezzo di richiesta € 79.000
Tipologia Immobiliare:
Appartamento
Tipologia Contrattuale:
Vendita
Prezzo:
79000.00 €
Mq:
62.00
Planimetrie:

